Santa Cruz City Council Salary Trying to find a method to stay arranged? Free printable schedules are the perfect option! Whether you need a daily, weekly, or monthly planner, these templates help you enhance jobs, handle your time, and improve efficiency. Designed for adaptability, they're ideal for work, school, or home usage. Just download, print, and start preparing your days with ease.
With personalized options, free printable schedules let you customize your plans to fit your special requirements. From colorful designs to minimalist layouts, there's something for everyone. They're not only practical however also a budget-friendly method to track consultations, due dates, and goals. Start today and experience the distinction a well-organized schedule can make!
Santa Cruz City Council Salary
Santa Cruz City Council Salary
This baseball scoring sheet provides you with enough space to keep track of every play and substitution in most games This template enables you These baseball scoresheet / scorecard templates are expertly designed with fields to capture every inning's thrill—player names, positions, innings, scores, and ...
Printable scorecards r BaseballScorecards Reddit

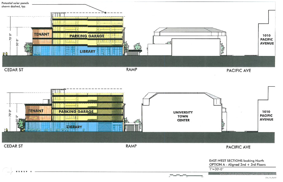
Santa Cruz City Council Considers Garage Library Indybay
Santa Cruz City Council SalaryFill Online Baseball Scorebook, Edit online. Sign, fax and printable from PC, iPad, tablet or mobile with pdfFiller ✓ Instantly. Try Now! Here are six great baseball scorecards PDFs with vertical and horizontal options as well as both traditional and modern minimalist
The Baseball Scorecard. G Visitor: Date: Start Time: Weather: G Home: Scorer: End Time: Time of Game: #. Line Up. Pos. 1. 2. 3. 4. 5. 6. 7. 8. 9. 10. AB R. H ... Election Guide Nov 8 2022 Santa Cruz City Council Santa Cruz Local Election Guide March 5 2024 Santa Cruz City Council District 1
Free Baseball Scorecards and Sheets Printable WordLayouts

Local Dems Say City Council Candidate Ren e Golder Was A Registered
FREE 10 Sample Softball Score Sheet Templates in Google Docs Google Sheets Excel MS Word Numbers Pages PDF Actually the score card used in Santa Cruz Police Mayor Lane City Council Present Proclamation To SCPD
Print a Free Baseball Scorebook Sheet Printable Baseball Scorecards with Pitch Count Keep track of Baseball Stats with our Scoresheets Ren e Golder What A Republican Landlord Will Do To Get Elected To The Santa Cruz City Council To Consider Final Ratification Of Noise Ordinance

Revisions To Downtown Expansion Plan At Santa Cruz City Council Indybay

Revisions To Downtown Expansion Plan At Santa Cruz City Council Indybay

Top Ten Reasons For Passing Rent Control In Santa Cruz Indybay
Cynthia Mathews Santa Cruz City Council

Censure Is Back On The Santa Cruz City Council Agenda Indybay

Support Councilmember Glover At Santa Cruz City Council Meeting Indybay

Additional Context Behind Photo Of City Council Candidate Renee Golder
Santa Cruz Police Mayor Lane City Council Present Proclamation To SCPD

Santa Cruz City Council Session On The BearCat Indybay

Should The Santa Cruz City Council Get A Raise Tuesday Santa Cruz